Design mit Raumwirkung für angenehmen Klang

Acoustic-Grilles bestehen aus vertikalen Lamellen, die individuell mit unterschiedlichen Oberflächen, Breiten und Längen hergestellt werden können. Die Fixierung der Lamellen untereinander erfolgt wahlweise mittels Aluminium-Rohren oder Sperrholzstreifen. Diese vorgefertigten Grilles-Elemente lassen sich mittels Clips problemlos an entsprechende T-Profile von üblichen Rasterdecken befestigen.

Akustischer Komfort und dezentes Design

Acoustic-RibPanels bestehen aus Lamellen, die individuell mit unterschiedlichen Oberflächen hergestellt und auf Akustik-Filzplatten befestigt werden. Diese gebrauchsfertigen Elemente können simpel montiert oder bei Bedarf einfach weiterbearbeitet werden.

Markante Linienführung für eine feine Akustik

Acoustic-Baffles sind vertikal abgehängte Akustik-Lamellen, die individuell mit unterschiedlichen Abmessungen, Oberflächen und Perforationen produziert werden können. Die Art der Montage lässt sich je nach Bedarf anpassen.

Acoustic-Grilles
Acoustic-RibPanels
Acoustic-Baffles

Beispiele

Empfangshalle

Ausführung:
Acoustic-Grilles, Eiche furniert

Deckenverkleidung

Loft

Ausführung:
Acoustic-Grilles, LightBeton® Classic Grey

Deckenverkleidung

Empfangshalle

Ausführung:
Acoustic-RibPanels, LightBeton® Retro

Wandverkleidung

Akustikwandverkleidung - Acoustic-RibPanels

Loft

Ausführung:
Acoustic-RibPanels, StoneVeneer Multi Color

Wandverkleidung

Lobby

Ausführung:
Acoustic-Baffles, Eiche furniert

Deckenabhängung

Acoustic-Grilles

Akustik

Akustischer Komfort hat einen großen Einfluss darauf, wie ein Raum erlebt wird. Acoustic-Grilles bieten eine ideale akustische Lösung mit natürlichem Charme. Höhe und Anordnung der Lamellen können die akustische Wirksamkeit und die gewünschte Atmosphäre erzeugen - für eine moderne und akustische Raumgestaltung.

Auftreffender Schall wird mittels Reflektion durch die offenen Bereiche zwischen den Lamellen hinter die Acoustic-Grilles geleitet. Eine rückseitige Vlieskaschierung kann für eine erweiterte Absorptionsleistung sorgen. Zusätzlich bietet sie die Möglichkeit die Deckenkonstruktion oder darunter befindliche Leitungen zu verdecken.

Gestaltungsfreiheit

Acoustic-Grilles bieten Architekten und Designern eine große Gestaltungsfreiheit. Der Verlauf der installierten Grilles untereinander erscheint nahtlos. Lediglich die Stoßfugen zwischen den Grilles bzw. zwischen Grilles und Raumbegrenzungen müssen in Längsrichtung mindestens 10 mm betragen.

 

Die Montage kann sowohl an der Decke, als auch an der Wand erfolgen. Die Vielzahl an Oberflächen reicht von Holzfurnieren, über Schichtstoffe und Farblacke bis zu unseren LightBeton-Oberflächen. Acoustic-Grilles lassen sich mit verschiedenen Beleuchtungstypen oder anderen technischen Komponenten kombinieren.

Flächenbeleuchtung hinter den Lamellen
LED-Beleuchtung hinter den Lamellen
Integrierte LED-Beleuchtung in den Lamellen

System

Je nach Lamellenstärke und –abstand können die Acoustic-Grilles zwischen 300 und 500 mm Breite produziert werden. Die Länge der Lamellen kann je nach Rastermaß der T-Profile zwischen 500 und 3000 mm liegen. Durch die Verbindung einzelner Lamellen können diese innerhalb eines Grilles bei Bedarf in den Dimensionen als auch in den Oberflächen unterschiedlich sein. Dies kann den Wand- oder Deckenflächen ihren eigenen Charakter verleihen.

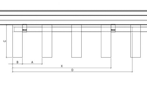
Konstruktion

Acoustic-Grilles werden anhand von fünf Merkmalen definiert:
X = Anzahl Lamellen
A = Abstand zwischen Lamellen
B = Dicke Lamellen
C = Höhe Lamellen
D = Breite Grille

Standard-Abmessungen der Lamellen:
Längen: 500 – 2700 mm
Höhen [C]: 45 – 150 mm
Dicken [B]: 12 – 51 mm
Standard-Breite Grille [D]: 305 mm
(weitere Abmessungen auf Anfrage).

Befestigung

Acoustic-Grilles lassen sich einfach an 24 mm T-Profilen für Raster-Systemdecken befestigen. Diese sollten der später erwarteten Flächenlast entsprechend abgehängt werden. Die Befestigung der Grilles kann mittels J- oder U-Clip erfolgen. Diese erlauben auch nach der Installation bei Bedarf ein einfaches Demontieren einzelner Bereiche.

 

Gewicht

Acoustic-Grilles wiegen zwischen 9 und 30 kg/m², je nach Abmessung und Anzahl der Lamellen.

Acoustic-RibPanels

Akustik

Der Charme natürlicher Oberflächen in Kombination mit der akustischen Wirksamkeit von Filz. Auftreffender Schall wird durch die Abstände zwischen den Lamellen geführt und durch den dahinter liegende Filz absorbiert.

Je nach Lamellenbreite und -abstand der Acoustic-RibPanels kann die akustische Wirksamkeit beeinflusst werden.

Akustikwandverkleidung - Acoustic-RibPanels

Gestaltungsfreiheit

Acoustic-RibPanels bieten eine große Gestaltungsfreiheit mit geringer Aufbaustärke. Die Panels lassen sich fortlaufend mit einer nahtlosen Optik montieren. Durch ihre lineare Optik lassen sich Blickrichtungen und Raumgefühl beeinflussen. Das relativ geringe Gewicht lässt neben der leichten Wandmontage auch einen Einsatz in Deckenbereichen zu.

Neben Schichtstoffen und Farblacken kann ebenso aus natürlichen Holzfurnieren, unseren StoneVeneer Echtschiefer-Oberflächen und urbanen LightBeton-Oberflächen gewählt werden. Ebenso kann aus einer Palette von unterschiedlichen Farben des Filzträgers gewählt werden, um gekonnt Akzente zu setzen.

System

Mit einer Standard-Abmessung von 2800 x 600 mm lassen sich simpel und schnell selbst große Flächen gestalten. Die überlappende Konstruktion der Acoustic-RibPanels ermöglicht ein einfaches Ansetzen weiterer Flächen. Optional können bei Bedarf auch größere Einzelformate angeboten werden.

Konstruktion

Acoustic-RibPanels bestehen aus Holzwerkstoff-Lamellen, die mit den gewünschten Oberflächen belegt werden. Diese werden mit einem entsprechenden Abstand auf einem 12 mm Akustik-Filz befestigt.

Abmessungen

Standard-Abmessungen
Länge: 2800 mm
Breite: 600 mm (weitere auf Anfrage)
Dicke: ca. 24 mm
(abhängig von gewählter Oberflächenausführung)

Standard-Raster
Breite Lamelle: 24 mm
Abstand: 7 mm
(weitere Raster auf Anfrage)

Acoustic-RibPanels sind in verschiedenen Abmessungen, Oberflächen- und Akustikfilz-Ausführungen erhältlich

Befestigung

Die Montage kann mittels direktem Nageln, Tackern, Verschrauben durch den Filzträger oder auch durch rückseitige Fixierung von Befestigungsmitteln erfolgen. Ebenso ist eine Direktverklebung mittels haftstarkem Montagekleber möglich.

Umweltfreundlichkeit

Die Akustik-Filzplatten bestehen aus Recyclingmaterial und sind zu 100% recyclebar.

 

Gewicht

Acoustic-RibPanels wiegen zwischen 10 und 12,5 kg/m², je nach Abmessung und Anzahl der Lamellen.

Acoustic-Baffles

Akustik

Hohe Räume mit weiten Deckenflächen bieten einen idealen Ansatzpunkt für die raumakustische Optimierung mit Baffeln.

Auftreffender Schall wird überwiegend absorbiert und verbliebene Schallenergie durch die vertikalen Baffeln diffus reflektiert. Je nach Lamellenbreite und –abstand kann die akustische Wirksamkeit beeinflusst werden.

Gestaltungsfreiheit

Acoustic-Baffles bieten Designern die Möglichkeit lineare Akzente zu setzen ohne dabei die Deckenflächen vollständig zu verkleiden. So können Betondecken oder technische Installationen in das Gesamtkonzept einfließen.

Neben Schichtstoffen und Farblacken kann ebenso aus natürlichen Holzfurnieren und unseren urbanen LightBeton-Oberflächen gewählt werden.

System

Acoustic-Baffles lassen sich einfach an verschiedene Systeme und Gegebenheiten anpassen. Durch den in sich geschlossenen Charakter der Baffeln werden neben flächigen Anwendungen auch partielle oder akzentuierende Anwendungen möglich. Die Abmessungen können hierzu dem Bedarf angepasst werden.

Konstruktion

Acoustic-Baffles bestehen aus einem akustisch optimierten Trägerwerkstoff, der mit den gewünschten perforierten Oberflächen belegt wird.

Maximal-Abmessungen

Länge: 3000 mm
Breite: 600 mm
Dicke: 50 mm
(weitere auf Anfrage)

Gewicht

Acoustic-Baffles wiegen zwischen 10 und 20 kg/m², je nach Abmessung.

Befestigung

Die Montage kann unter anderem individuell mit punktmäßigen Drahtseilabhängungen an Bestandsdecken erfolgen. Diese Montagevariante ermöglicht es die Acoustic-Baffles neben der freien Platzierung in der Deckenfläche auch in der Abhängehöhe zu variieren. Alternativ kann zur Montage einheitlicher und großflächiger Baffel-Installationen auf Rasterdecken-Profile zurückgegriffen werden.

Oberflächen

Acoustic-Grilles, Acoustic-RibPanels und Acoustic-Baffles sind in verschiedenen Veredelungsoptionen erhältlich. Eine Vielzahl an Oberflächen sind möglich - von Holzfurnieren über Schichtstoffe und Farblacke bis zu unseren authentischen LightBeton®-Oberflächen.

Für unsere Acoustic-RibPanels steht darüber hinaus auch unser StoneVeneer zur Auswahl - echtes Steinfurnier aus Naturschiefer für Ihre Wandgestaltung. Der Gestaltung und Vielfalt dieser Akustik-Produkte sind keine Grenzen gesetzt - auch die Ausführung nach RAL-Farben ist möglich.

Holzfurnier

für Acoustic-Grilles, Acoustic-RibPanels und Acoustic-Baffles  -  weitere Furnier-Ausführungen auf Anfrage erhältlich:

Ahorn
Eiche
Kirsche
Nussbaum

LightBeton®

für Acoustic-Grilles, Acoustic-RibPanels und Acoustic-Baffles

Classic grey
Classic anthrazit
Classic white
Authentic
Retro

StoneVeneer

nur für Acoustic-RibPanels  -  weitere Steinfurnier-Ausführungen auf Anfrage erhältlich:

Autumn
Multi Color
Black Star
Gold Green

Filz

nur für Acoustic-RibPanels  -  weitere Filz-Ausführungen auf Anfrage erhältlich:

Weiß
Grau meliert
Schwarz

Weitere Informationen

Newsletter
Was ist die Summe aus 2 und 3?

Mit * gekennzeichnete Felder sind Pflichtfelder.

Richter Profi Chat

Der Profi Chat ist geblockt. Bitte akzeptieren Sie das Baufragen_chat Cookie in unseren Cookie Einstellungen.

Cookie Einstellungen